
大阪府大阪市東淀川区東淡路4丁目33−34
阪急京都線 淡路駅 徒歩2分 JRおおさか東線 JR淡路駅 徒歩3分
担当者からのおすすめポイント
Point
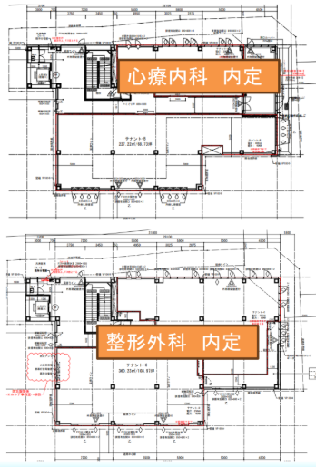
3‐4階クリニック区画
Point
乗降客数の多い駅前立地
Point
阪急淡路駅高架化事業及び土地区画整理 事業エリア
| 物件No | 1291 |
|---|---|
| 住所 | 大阪府大阪市東淀川区東淡路4丁目33−34 |
| アクセス(最寄り駅) | 阪急京都線 淡路駅 徒歩2分 JRおおさか東線 JR淡路駅 徒歩3分 |
| プラン | 68.73坪 要相談※残り1区画 |
| 賃料 | 14,000円/坪(税別) |
| 募集科目 | 心療内科、整形外科、歯科以外すべて |
| 登録日 | 2026/04/08 |
| 更新日 | 2026/04/08 |















