
大阪府枚方市中宮北町1番15号
京阪本線枚方市駅 徒歩20分、バス5分 京阪バス 市民病院前 徒歩3分
担当者からのおすすめポイント
Point
市立ひらかた病院に隣接し、旧公団の中宮第三団地、第四団地、 公務員宿舎など、2100戸以上のマンションが立ち並ぶ立地
Point
駐車場あり、9人乗りエレベーター設置
Point
現在、小児科、皮膚科、内科・整形外科・(在宅内科)が入居済
| 物件No | 1142 |
|---|---|
| 住所 | 大阪府枚方市中宮北町1番15号 |
| アクセス(最寄り駅) | 京阪本線枚方市駅 徒歩20分、バス5分 京阪バス 市民病院前 徒歩3分 |
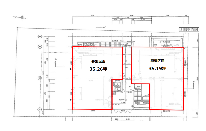
| プラン | 1F17.50坪、3F35.26坪、3F35.19坪 |
| 賃料 | 1F区画11,000円/坪(税別)、3F区画9,000円/坪(税別) |
| 敷金 | 月額賃料の6ヶ月分 |
| 募集科目 | 眼科、泌尿器科、心療内科、歯科、その他 |
| 登録日 | 2026/04/10 |
| 更新日 | 2026/04/10 |


















